Header Image

207 34th Avenue, Spencer, IA 51301

$284,900

Open House: 31 Jan, 2026 (10:00 AM to 11:00 AM)
Open House
  • MLS# 231319
  • Bedrooms 3
  • Bathrooms 2
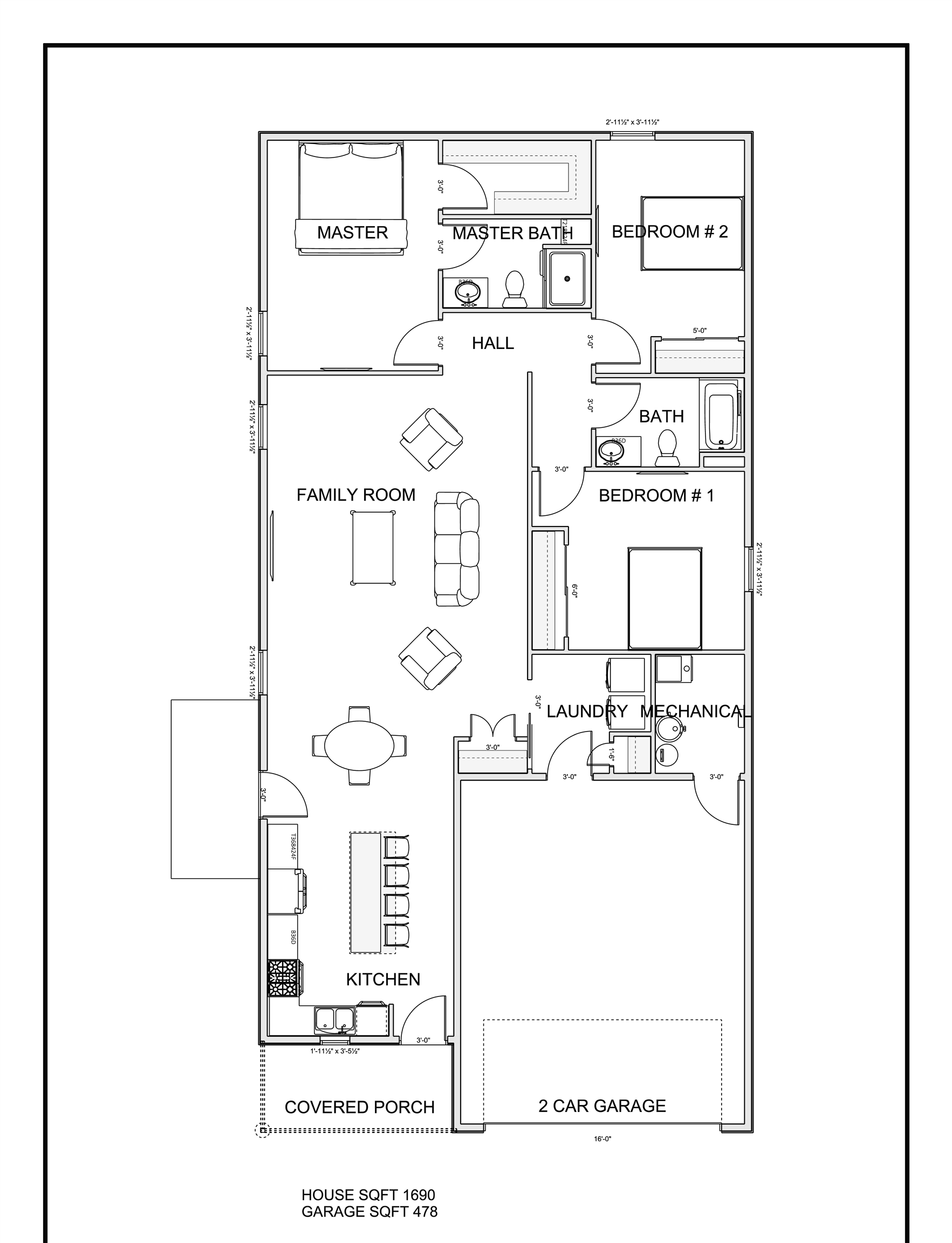
  • Total Sq.ft 1,690
  • Property Type Residential
  • Style Contemporary
  • Stories 1
  • Year Built 2023

Property Description

The Declan Floor Plan with 1,653 Finished SqFt is the largest floorplan option in the Westfield Development. The spacious open floor plan allows for many workable furniture arrangement layouts. Rest easy in the Master Bedroom, with Master Bath Ensuite, and Walk-in Closet. Oversized 2 Stall Garage has built in floor drain and water spigot for your convenience. Westfield Clubhouse includes an entertaining area complete with kitchen for you to enjoy with your friends and family or neighborhood gatherings. The basement will be used for storm shelter if needed. Street assessments have been paid in full and there is a 5 year tax abatement to save you even more.

Legal: LOT 53 WESTFIELD BY IGL 1ST ADDN (See abstract for exact legal description)
Active

Property Information

  • 231319
  • $284,900
  • Sale
  • Single Family Residence
  • Contemporary
  • RESIDENTIAL
  • 207 34th Avenue W
  • Spencer
  • IA
  • 51301
  • 3
  • 2
  • 1
  • 1
  • 1
  • 1690
  • 6026
  • Attached
  • 2
  • 0.00
  • 3958
  • 2025
  • Spencer
  • 2023

Features

  • No
  • Driveway-Concrete, Fenced Yard-Partial, Porch
  • Ceiling Fan(s), Garage Door Opener, Kitchen Center Island, Main Floor Bedrooms, Main Floor Laundry, Walk-in Closet, Washer/Dryer Hkups
  • Water Heater-Elec

Utilities

  • Forced Air
  • Public/City
  • Public Sewer
  • Central
  • Breakers

Miscellaneous

  • Slab
  • None
  • Stick Built
  • Smart Board

LISTED BY

EXIT Realty Midwest- Spencer/Emmetsburg, Cristy Jones (712.260.0423)

Property Location

SIMILAR LISTING

1416 18th Avenue, Spencer, IA 51301
Open House
26
Status: Active

Move-In Ready & Loaded with Space! All the work has been done for you in this beautifully maintained home—just unpack and enjoy. The main floor offers three spacious bedrooms and a full bath, while the private lower-level master suite provides a...

  • 251587MLS #
  • 2BATHS
  • 4BEDS
  • 2152SQFT
Open House: 08 Feb, 2026 (01:00 PM to 02:00 PM)
Listed by : EXIT REALTY MIDWEST- SPENCER/EMMETSBURG, KARI STAVE (712.363.2691)
905 5th Ave SW, Spencer, IA 51301
16
Status: Active

Stunning kitchen! Custom built cabinets, quartz countertops, stainless-steel appliances, large center island perfect for preparing meals and serving. This town home features an open concept living area, private master bedroom with 3/4 bath & guest...

  • 251414MLS #
  • 2BATHS
  • 2BEDS
  • 1251SQFT
Listed by : REALTY PROFESSIONALS, MARK HALLETT (712.363.0145) & REALTY PROFESSIONALS, SUSANNE HALLETT (712.363.0144)
528 17Th Street, Spencer, IA 51301
14
Status: Active

A ranch style home on a quiet street checks all the boxes! 3 bedrooms with 2 bathrooms on main floor, open eat-in kitchen with plenty of gorgeous cabinets, the white vinyl fence provides privacy while enjoying your patio in your backyard. Newer...

  • 251477MLS #
  • 2BATHS
  • 4BEDS
  • 1408SQFT
Listed by : EXIT REALTY MIDWEST- SPENCER/EMMETSBURG, KELLY PULLEN (712.240.0382)
829 2Nd Avenue, Spencer, IA 51301
37
Status: Active

This modern, open-concept single-family home, with over 1900 square feet of living space, offers 4 bedrooms and 2 1/2 bathrooms. The firstfloor features a spacious primary bedroom suite, a convenient laundry area, and a living room that flows...

  • 251345MLS #
  • 3BATHS
  • 4BEDS
  • 1912SQFT
Listed by : HINN REAL ESTATE, DOUG SMALL (712.260.4776)
1102 St. Luke #308, Spencer, IA 51301
Price Decreased
30
Status: Active

Welcome home to Country Side Condominiums...Carefree living awaits in this beautiful 2-bedroom, 2-bath condo located in a desirable 55+ community. This third-floor home features an inviting open floor plan with a versatile den and panoramic views...

  • 251219MLS #
  • 2BATHS
  • 2BEDS
  • 1451SQFT
Listed by : EXIT REALTY MIDWEST- SPENCER/EMMETSBURG, LORI BLACK (712.260.1372)
109 Parkway Drive, Spencer, IA 51301
Price Decreased
15
Status: Active

Welcome to this 3 bedroom 1.5 home that offers comfort, character, and peace of mind. Situated on a spacious lot, this property features large living spaces, all bedrooms on the main level, and lots of space in the basement for storage and more,...

  • 251402MLS #
  • 2BATHS
  • 4BEDS
  • 1220SQFT
Listed by : EXIT REALTY MIDWEST, MEGAN JEWELL (712.330.6458)

Request Info For MLS #231319

Tracy Evans - Residential Expert
Brooke Jones - Broker Associate, ABR|RSPS, Lakeshore and Residential Expert

Brooke Jones

Broker Associate, ABR|RSPS, Lakeshore and Residential Expert

Mortgage Calculator

This calculator will compute the monthly payment on a mortgage based upon figures you supply.

Subscribe To Our Newsletter

The newsletter is sent periodically and will update you on the latest real estate news and offers.