Header Image

110 34th Avenue, Spencer, IA 51301

$292,000

Built in 2023
  • MLS# 240893
  • Bedrooms 3
  • Bathrooms 2
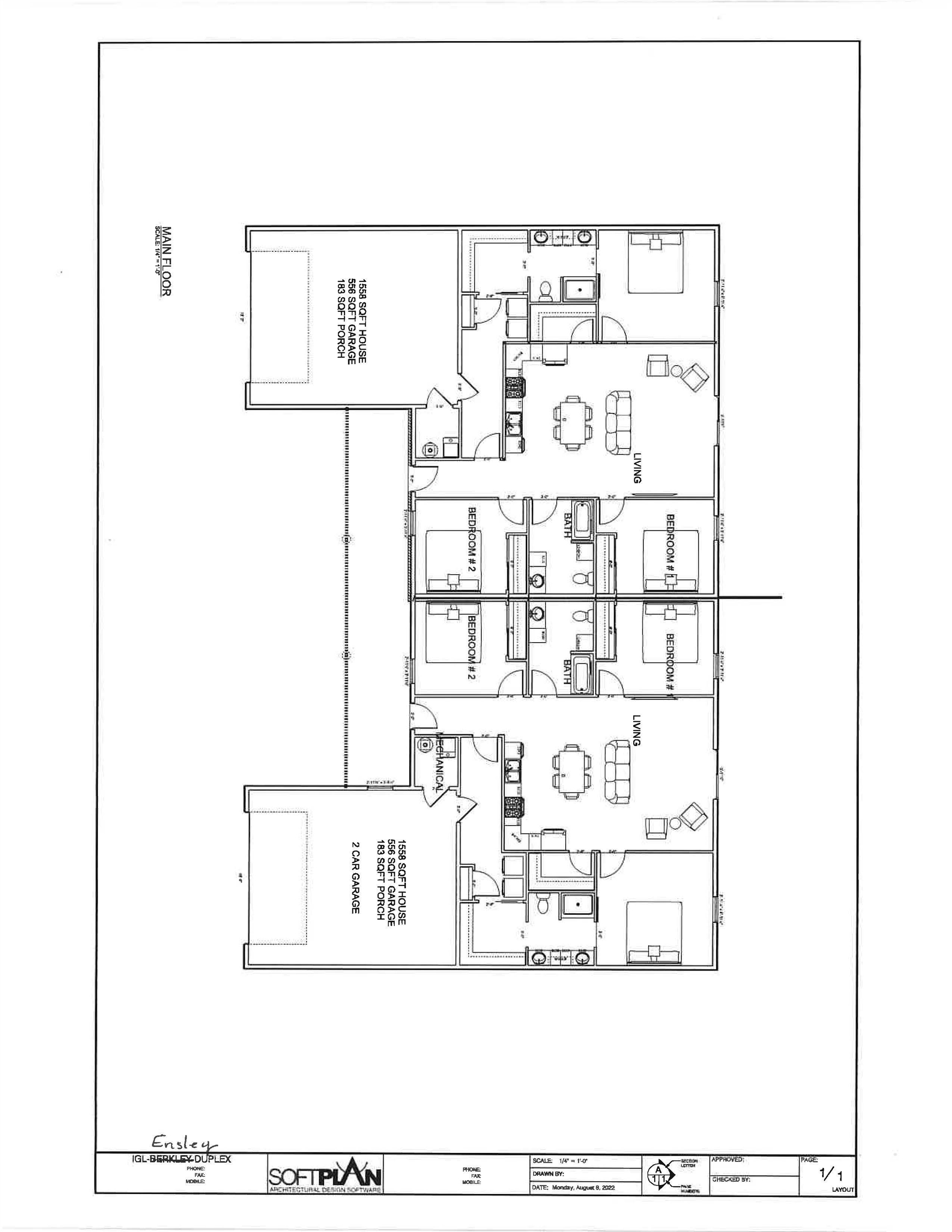
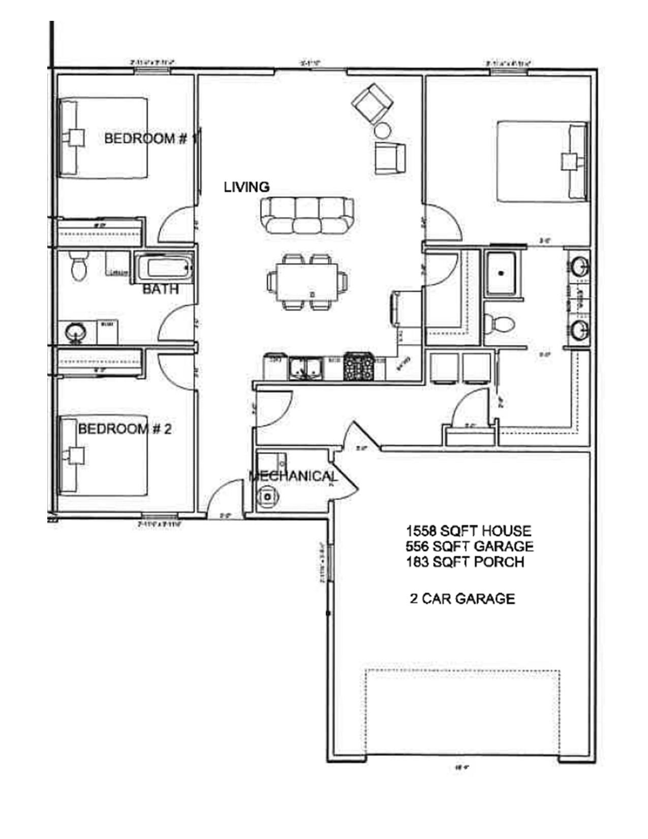
  • Total Sq.ft 1,533
  • Property Type Residential
  • Style Contemporary
  • Stories 1
  • Year Built 2023

Property Description

Introducing a stunning new construction home to the market! This 3-Bedroom 2 Bath gem is designed with modern living in mind. With a spacious open floor plan spanning 1,533 finished sq ft this house offers a perfect blend of comfort and style. As you enter you will be greeted by the inviting living area showcasing the seamless flow between the living room, dining space & kitchen. The open layout creates a warm & inclusive atmosphere, perfect for entertaining friends & family. The kitchen is a true highlight, boasting a walk-in pantry that provides ample storage for all your culinary needs. The master bedroom is a peaceful retreat, complete with an en-suite bathroom and a generous walk-in closet. With two additional bedrooms, this home provides plenty of space for a growing family or for those in need of a home office or guest rooms. The attached oversized 2-stall garage ensures convenient parking & storage. Don't miss the opportunity to make this house your dream home. Schedule a showing today and experience the perfect blend of modern design, functionality, & comfort! Westfield Clubhouse includes an entertaining area complete with a kitchen for you to enjoy with your friends and family or neighborhood gatherings. The basement will be used for storm shelter if needed. Street assessments have been paid in full and as an added bonus there is a 5 year tax abatement.

Legal: LOT 42 WESTFIELD BY IGL 1ST ADDN (See abstract for exact legal description)
Active

Property Information

  • 240893
  • $292,000
  • Sale
  • Duplex
  • Contemporary
  • RESIDENTIAL
  • 110 34th Avenue W
  • Spencer
  • IA
  • 51301
  • 3
  • 2
  • 1
  • 1
  • 1
  • 1533
  • 6000
  • Attached
  • 2
  • 0.00
  • 2574
  • 2025
  • Spencer
  • 2023

Features

  • No
  • Driveway-Concrete, Patio, Porch
  • Ceiling Fan(s), Home Warranty, Main Floor Bedrooms, Main Floor Laundry, Vaulted Ceilings, Walk-in Closet, Washer/Dryer Hkups
  • Water Heater-Elec

Utilities

  • Forced Air
  • Public/City
  • Public Sewer
  • Central
  • Breakers

Miscellaneous

  • Slab
  • Stick Built
  • Other

LISTED BY

EXIT Realty Midwest- Spencer/Emmetsburg, Cristy Jones (712.260.0423)

Property Location

SIMILAR LISTING

2008 4th Avenue, Spencer, IA 51301
20
Status: Active

On the Golf Course… The peaceful ambiance of the golf course is exceptional. This 2-bedroom, 2-bathroom condo features an attached double car garage and spectacular views! It has been beautifully maintained and is move in ready, offering the...

  • 251398MLS #
  • 2BATHS
  • 2BEDS
  • 1503SQFT
Listed by : INGVALL REAL ESTATE TEAM, TRICIA WEMPE (712.260.8888)
905 5th Ave SW, Spencer, IA 51301
16
Status: Active

Stunning kitchen! Custom built cabinets, quartz countertops, stainless-steel appliances, large center island perfect for preparing meals and serving. This town home features an open concept living area, private master bedroom with 3/4 bath & guest...

  • 251414MLS #
  • 2BATHS
  • 2BEDS
  • 1251SQFT
Listed by : REALTY PROFESSIONALS, MARK HALLETT (712.363.0145) & REALTY PROFESSIONALS, SUSANNE HALLETT (712.363.0144)
528 17Th Street, Spencer, IA 51301
14
Status: Active

A ranch style home on a quiet street checks all the boxes! 3 bedrooms with 2 bathrooms on main floor, open eat-in kitchen with plenty of gorgeous cabinets, the white vinyl fence provides privacy while enjoying your patio in your backyard. Newer...

  • 251477MLS #
  • 2BATHS
  • 4BEDS
  • 1408SQFT
Listed by : EXIT REALTY MIDWEST- SPENCER/EMMETSBURG, KELLY PULLEN (712.240.0382)
829 2Nd Avenue, Spencer, IA 51301
37
Status: Active

This modern, open-concept single-family home, with over 1900 square feet of living space, offers 4 bedrooms and 2 1/2 bathrooms. The firstfloor features a spacious primary bedroom suite, a convenient laundry area, and a living room that flows...

  • 251345MLS #
  • 3BATHS
  • 4BEDS
  • 1912SQFT
Listed by : HINN REAL ESTATE, DOUG SMALL (712.260.4776)
212 3rd Street, Spencer, IA 51301
63
Status: Active

One of my FAVORITE HOMES & it will be your FAVORITE TOO! This AMAZING property encompasses a one-third acre lot! Spacious ALSO meets comfort: OVER 3,200 sq ft of HOME! 3-bedrooms (with lower level en-suite), 3-bathrooms; office, mud-room,...

  • 251427MLS #
  • 3BATHS
  • 4BEDS
  • 3276SQFT
Listed by : EXIT REALTY MIDWEST, TAMMY FREDERICKSEN (712.209.0836)
109 Parkway Drive, Spencer, IA 51301
15
Status: Active

Welcome to this 3 bedroom 1.5 home that offers comfort, character, and peace of mind. Situated on a spacious lot, this property features large living spaces, all bedrooms on the main level, and lots of space in the basement for storage and more,...

  • 251402MLS #
  • 2BATHS
  • 4BEDS
  • 1220SQFT
Listed by : EXIT REALTY MIDWEST, MEGAN JEWELL (712.330.6458)

Request Info For MLS #240893

Tracy Evans - Residential Expert
Brooke Jones - Broker Associate, ABR|RSPS, Lakeshore and Residential Expert

Brooke Jones

Broker Associate, ABR|RSPS, Lakeshore and Residential Expert

Mortgage Calculator

This calculator will compute the monthly payment on a mortgage based upon figures you supply.

Subscribe To Our Newsletter

The newsletter is sent periodically and will update you on the latest real estate news and offers.